Previous
Next
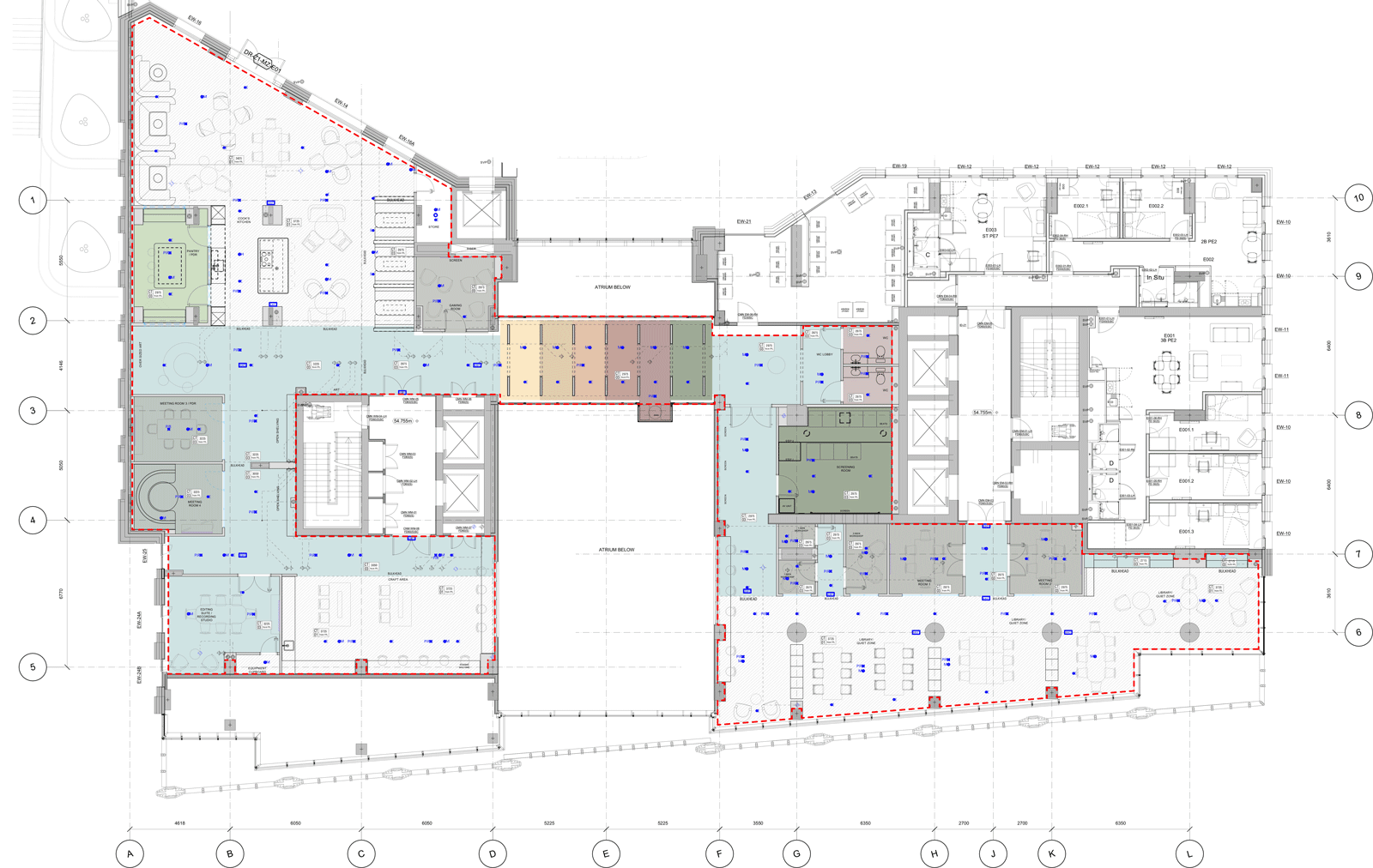
This project involved us in the production of construction drawings for the amenity areas in this student housing project in Leeds.
The spaces were arranged over four floors and our work involved development of highly detailed pieces of furniture along with full coordination of M+E and lighting.
The scheme was developed from an initial package from the project interior designer, Nicola Harding & Co.
Stephen Marshall Architects
Unit B
Gainsborough Studios West
1 Poole Street London N1 5EA
Tel: 020 7033 3130
enquiries@marshallarchitects.co.uk